Станки БУ продажа
Ижевск, ООО НПФ "Машиностроитель", тел. + 7 919 917 55 04, info@stanok18.ru
| Главная|О компании|Контакты| Станки, оборудование Б/У| Механообработка|
|Техническая библиотека|
 

Техдокументация на станки, Токарно-копировальный специализированный станок для обработки профиля кулачков распределительного вала МК-78

 

Техническая библиотека -> Токарные станки->

Токарно-копировальный специализированный станок
для обработки профиля кулачков распределительного вала МК-78

 
Токарно-винторезный станок МК-78

Станок предназначен для последовательного обтачивания профиля кулачков распределительно­го вала под шлифование.

Обтачивание профиля на станке возможно с различным количеством проходов. При круглой заготовке профиль кулачка может быть получен за четыре-шесть проходов, а при штампованной за­готовке — за два прохода резцом.
Станок имеет    одинарный копировальный   суппорт для последовательной обработки кулачков с переиндексацией заготовки вручную.

Переиндексация заготовки осуществляется спе­циальным патроном с делительным диском.
Угловая фиксация заготовки выполняется через хомутик, закрепленный на концевой шейке распре­делительного вала в специальном приспособлении.

Число оборотов шпинделя и величина подачи изменяются передвижением соответствующих руко­яток на коробке скоростей и коробке подач.


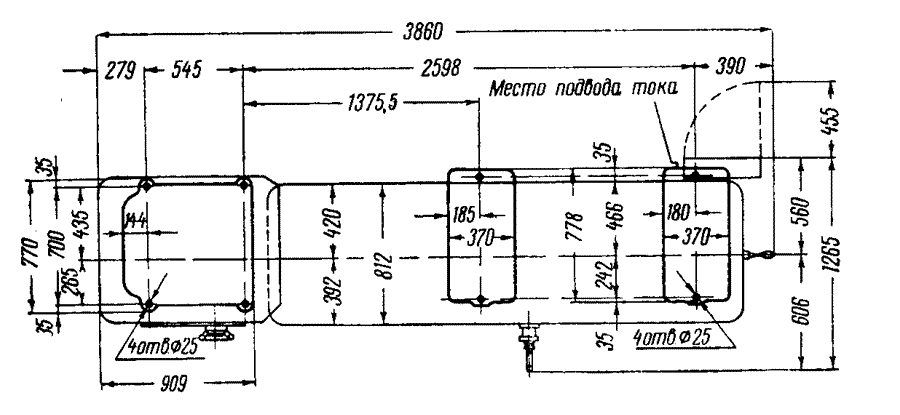
Установочный чертёж Токарно-копировальный специализированный станок для обработки профиля кулачков распределительного вала МК-78
Установочный чертёж Токарно-винторезный станок МК-78

 

 

Основные данные

Основные    размеры
Наибольший диаметр обрабатываемого из­делия, мм. 80
Наибольшее расстояние между центрами зад­ней и передней бабок, мм       2000
Высота центров над станиной, мм 215
Механика станка
Число скоростей шпинделя. 12
Пределы числа оборотов шпинделя в минуту. 12,5—160
Число подач 8
Пределы   продольных  подач, мм/об шпинделя 0,07—1,1
Привод, габарит и вес станка
Мощность электродвигателя главного
при­вода, квт.           
7
Габарит станка   (длина,  ширина, высота), мм. 3860X1265X1350
Вес станка, кг... 3150
Изготовитель — Московский городской
совнархоз.

 

 

 

Продаётся: Токарно-винторезный повышенной точности 1И611П б/у
Продаётся: Станок фрезерный СФ 35 б/у

 
ООО НПФ "Машиностроитель", Ижевск - Техническая документация на станки, Токарно-копировальный специализированный станок для обработки профиля кулачков распределительного вала МК-781